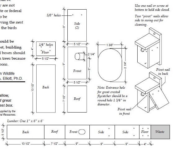
Bird houses are an easy way to create additional nesting sites and keep more birds around your home. In fact, bird houses have been in wildife management to help bring back certain cavity-using speices. In this fact article, we explain how to build houses for different kinds of bird species and even some tips for setting them up. As lands become more developed, bird houses become more important. In this article, you find a pattern for the “one-board” bird house in addition to a list of bird house dimensions (above) so you can adapt the pattern for different avian species. Tailoring the house you build to the needs of species you want to attract will increase your chances of success.
For bird houses for all species, here are 11 general guidelines to follow to help you help the birds on your property:
1. Provide a hinged side or roof so you can easily clean the house each spring; early March is a good time. Use rust-proof hinges to make the task easier. Keep in mind that raccoons can open a hook and eye!
2. Drill at least four 1/4-inch drain holes in the bottom of every house, and two 5/8-inch ventilation holes near the top of each side of the house. This keeps the nest well-drained and from over-heating.
3. Provide a roof with at least a two-inch overhang on the front to protect the entrance hole from wind-driven rain, and to prevent cats from reaching in from above. This can save a lot of baby birds!
4. The sides of the bird house should enclose the floor to keep rain from seeping into the house and nest. Recess the floor 1/4 inch up from the bottom to further prevent the rotting caused by moisture.
5. Don’t put perches on any bird house. In addition, remove them from houses that you purchase. The only birds that prefer perches are non-native birds such as European starlings and English house sparrows.
6. Keep entrance holes on songbird houses 1 3/8 inches or smaller to keep out starlings and house sparrows. Purple martins are the only exception.
7. Space nest boxes at least 25 feet apart (300 feet for bluebird houses) to reduce conflicts. Most birds are territorial to some extent and protect the area around their nests. Goldeneye mergansers and wood ducks are not territorial, so you can place their houses closer together. Purple martins, however, live in colonies and prefer “apartment houses” to single family houses.
8. Wood is the best material to use for bird house construction. Avoid pressure-treated lumber because when it gets wet it can give off vapors that are poisonous to birds. Preservatives, such as paint or stain, can be used on the outside of the box, especially the back, but not on the inside. Avoid using creosote as a preservative.
9. Do not use tin cans, milk cartons or metal for nest boxes. They can overheat and kill the eggs and young birds. The only exceptions are commercial aluminum martin houses.
10. Other animals may take up residence in your boxes, including mice, squirrels, bees and wasps. If unwanted, remove them as soon as possible. Otherwise put up a few extra boxes to make room for both the expected and unexpected tenants.
11. Research the habitat needs of the birds you wish to provide nest boxes before placing them out. Many birds will use a bluebird bird house, but some will not. Understanding the plant communities and structure needed by certain bird species will increase your chances of success, and help you have a better understanding of the beneficial wildlife management practice that you are implementing on your land!

